New Construction & Custom Building

Custom Built House in Groton, Massachusetts
 

(Click on Any Image for a Larger View)

 
  NCCBConcept1sm.jpg (46786 bytes)  

Concept Image

NCCBConcept4sm.gif (16382 bytes)

Concept Rear Elevation

NCCBConcept2sm.jpg (29190 bytes)

First Floor Plan

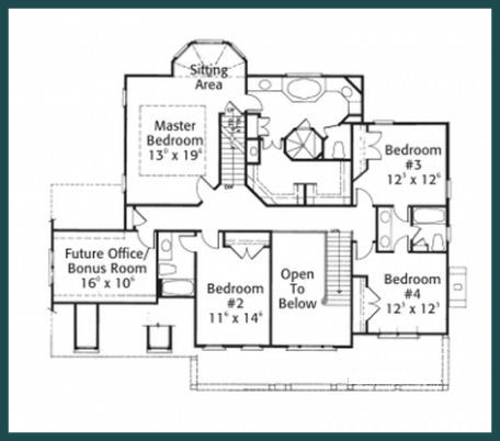
NCCBConcept3sm.jpg (29373 bytes)

Second Floor Plan

Front View

nchouse0106.jpg (50727 bytes)

Front View Garage End

IMAGES/nchouse0108.jpg (44071 bytes)

Rear View

nchouse0110.jpg (50243 bytes)

Deck & Sunroom

IMAGES/nchouse0108.jpg (44071 bytes)

Rear View

 

New construction in Chelmsford, Massachusetts
NCSPImage1sm.jpg (36746 bytes)

Front View

  Home